Власть утвердила проекты благоустройства для привокзальной площади и бульвара
Переглядів: 2638
24 жовтня 2013 15:36

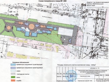
Схема размещения временных сооружений для территории по б-ру 30 лет Победы, 1
Специалисты КП "ППАПБ" разработали комплексные схемы размещения временных сооружений для ведения предпринимательской деятельности на б-ре 30 лет Победы, 1 (напротив рынка "Таврический") и по ул. Фрунзе, 268 (привокзальная площадь). Решение об разработке четырех таких схем для мест наибольшего скопления торговых киосков и павильонов было принято горсоветом по требованию Министерства регионального развития около полугода назад. Из выделенных 20 тыс. грн. сегодня освоена половина. Схемы учитывают расположение действующих торговых "точек", отводят место для новых временных сооружений, а также предполагают благоустройство территории - создание газонов и цветников.
alinazaharova
24 жовтня 2013 г. (21:45)
Ответить
должно получится симпатично в общем-то) надеюсь в клумбах будут красивые цветы, а не огрызки)
Так генеральный план города не утвержден, а торговые точки плодятся.
Генеральный план - это много. Надо учитывать учу нюансов.
Мне куда больше по душе, чтобы делалось все по-немного, такими вот кусочками
хоть понятно
Мне куда больше по душе, чтобы делалось все по-немного, такими вот кусочками
хоть понятно
Возле Кировского рынка уже разместили кучу новых торговых павильонов, а клумбы как то забыли...Для строительства приюта для животных землю выделить нельзя без генерального плана города, а для торговли можно.
Коляша, куча ньюансов у тебя в голове безмозглой!
Утвердить план - это одно! Где остальное благоустройство? Где новая плитка, новый асфальт?
Нахрена в городе новые базары?
Выйди дурачок на проспект в районе парка. Вот это благоустройство!
А электрик с гайцом только пиарится могут на ветеранах, и с помощью таких кретинов как ты!
хорошие проекты ,вроде бы)
Схожі новини: